野田・流山・柏・松戸・船橋で
自然素材の注文住宅なら
グッドリビングへ。

野田・流山・柏・松戸・船橋で、自然素材の注文住宅ならグッドリビングへ。

どんぐりの家:想.souシリーズ

想.souシリーズ

寸法を統一し、材料の無駄を省き、工期短縮を行い、スペックは落とさずリーズナブルに自然素材住宅をお届けしたいという想いが詰まったシリーズです! 金物工法・基礎断熱を採用し、太陽光発電3kW以上が乗る屋根型を基本に、内部はお子様の成長に合わせて可変性を重視した、20代・30代の子育て世代のファミリー向けです。
 
家族の健康と繋がり(コミュニケーション)を第一に考え、お子様の成長と共に変化するライフスタイルに合わせて可変できる「自然素材の家」を、いつまでも長く住み継いでいただける長期優良住宅としてできあがりました。
 
冬の「暖」は、豊富に降り注ぐ太陽の恵みと「輻射熱暖房+バイオマス燃料」で、カラダと環境に優しいペレットストーブを利用して、室内の暖まった熱を外に逃がしません。夏の「涼」は、熱を外側でブロックして室内に入る熱を抑えて、補助的に省エネ型エアコン1台を効果的に利用します。
 
想.souシリーズの「外観特集」を見る
 

想.souシリーズのコンセプト

想sou.シリーズ
これからの住まいには、安心して暮らせる家づくりが重要です。それには住む人の「健康の維持」は避けて通れません。室内の空気環境を改善し、自然素材の持つ特性を上手に生かし、健康に良い家づくりが必要です。
 
もうひとつは、地球環境の保護も大切な課題です。日々の暮らしのなかで省エネルギー(省CO2)を実現できること、廃材が再利用でき、燃やしても有害物質を出さないことなど、地球環境に負荷を与えないことが、これからの家づくりに、ますます重要になってきています。
 
私たちグッドリビングでは、2004年から取り組んでいる自然素材住宅「どんぐりの家」を通じて、このテーマの普及活動を行ってまいりましたが、コストの問題からその活動の範囲は、どうしても限られた範囲にとどまらざるをえない状況でした。
 
しかしながら今回、数多くの関係者のご協力によってモジュールの見直しを行った結果、材料のムダを省き、施工効率も大幅にアップ、工期の短縮を実現した、コストパフォーマンスの高いシリーズが完成しました。
 
その名も、どんぐりの家 「想.souシリーズ 。「人と地球にやさしい本物の家づくり」を、より多くの皆様へ…私たちをはじめとして、さまざまな人たちの想いがこめられた、新しいコンセプト住宅です。
 

想sou.シリーズの特長

●先進の金物工法の採用で、地震にきわめて強い構造
●デコスドライ断熱+基礎断熱で、室内と戸外の環境を分断
●エアコン1台で夏冬過ごせる、健康&省エネルギー生活
 

 

「想sou.シリーズ」の外観です。南面は「スギ無垢板」貼り、その他は「ガルバリウム鋼板」貼りです。
※それぞれの画像をクリックすると拡大サイズでご覧いただけます。

「想-sou-シリーズ」の、床材と同じ赤松材の階段「想-sou-シリーズ」の、床材と同じ赤松材の階段です。ストレート階段と廻り階段があります。1階・2階とも南面は真壁つくりになっています。

「想sou.シリーズ」の、床材と同じ赤松材の階段です。ストレート階段と廻り階段があります。1階・2階とも南面は真壁つくりになっています。

 

階段を上がると見える2階です。デコス屋根断熱材は上葺きで、105mm厚を55kg圧で隙間なく吹き込んでいます。

階段を上がると見える2階です。デコス屋根断熱材は上葺きで、105mm厚を55kg圧で隙間なく吹き込んでいます。

リビング入口付近から見た1階です。デコスドライ断熱工法+基礎断熱で内・外を分断しています。壁+天井(現し以外)は全部珪藻土ぬり壁仕上げです。

リビング入口付近から見た1階です。デコスドライ断熱工法+基礎断熱で内・外を分断しています。壁+天井(現し以外)は全部珪藻土ぬり壁仕上げです。

シンプルにまとめたオリジナル洗面化粧台です。オプション対応ですが、標準既製品(タカラ社製)との差額でお手頃価格で設置できます。

シンプルにまとめたオリジナル洗面化粧台です。オプション対応ですが、標準既製品(タカラ社製)との差額でお手頃価格で設置できます。

2階の主寝室です。勾配天井現し仕上げ壁は珪藻土ぬり壁仕上げで、床は赤松無垢板貼り蜜蝋ワックス仕上げです。

2階の主寝室です。勾配天井現し仕上げ壁は珪藻土ぬり壁仕上げで、床は赤松無垢板貼り蜜蝋ワックス仕上げです。

リビング隣接の畳コーナーです。

リビングに隣接した畳コーナーです。

システムキッチン

キッチン

キッチンは、食器洗い乾燥機、浄水器内蔵ハンドシャワー水栓、IHヒーター加熱機器を標準装備。カラーは、全40色からお選びいただけます。

洗面化粧台

洗面

洗面は、ハイパック人造大理石カウンター、ハンドシャワー、裏側が収納スペースの3面ミラーキャビネットを標準装備。オプションで造作洗面や造作手洗いも設置できます。カラーは、全40色からお選びいただけます。

ユニットバス

浴室

浴室は、浴槽裏・壁面・天井に保温材を使用し、高品位ホーロー、耐震システムバス、浴室換気乾燥暖房機、ワンプッシュ排水栓を標準装備。

トイレ

トイレ

トイレは、約69%節水できる超節水ECO5、スーパー節電機能、女性専用レディスノズル、ノズルシャッター、キレイ便座を標準装備。

 

ウッドデッキ/バルコニー(ヒノキ材)

ウッドデッキ/バルコニー(ヒノキ材)
ウッドデッキ/バルコニー(ヒノキ材)

ウッドデッキ、バルコニーの材質にはヒノキを採用。ヒノキ材には、殺虫効果の高いヒノキチオールが多く含まれており、耐久性にすぐれています。

外壁(ガルバリウム鋼板+スギ板貼り)

外壁(ガルバリウム鋼板+スギ板貼り)
外壁(ガルバリウム鋼板+スギ板貼り)

ガルバリウム鋼板は、アルミニウムが55%含まれており非常に錆びにくい素材です。またスギ板貼りには高機能木材塗料を塗布するため厳しい気象条件にも耐えられます。

本物の家づくり…それは、人と地球にやさしい住まいの実現です。

金物工法(プレセッター)で高い強度の構造体

金物工法(プレセッター)
金物工法(プレセッター)は、家の骨格となる構造体を強固に接合する、新時代の家づくりに欠かせない金物工法です。柱と梁、桁と小屋束、土台と基礎など、さまざまな躯体組立や梁成と梁勾配に対応し、耐震性・耐久性・気密性に優れています。プレカット工場で加工された構造材の接合部に組み込むため、高精度・高強度の構造躯体に加えて、スピーディーな施工も実現します。
さらに、自然素材で懸念される木酸による腐食も抑え、長期優良住宅や住宅性能表示の劣化等級3(およそ75~90年)に対応します。

デコスドライ断熱+基礎断熱で高い断熱性

唯一室内側の防湿層が不要な、次世代省エネ基準の自然素材の断熱材を壁・天井に隙間なく施工すること(デコスドライ断熱工法)によって、家全体を包みます。これにより、家全体の断熱性能を高め、室内の温度差の少ない快適な住環境となります。さらに、床部分についても1階の床面で断熱するのではなく基礎の内側に断熱材を貼って断熱する工法(基礎断熱工法)により、家の内側と外の環境をしっかり分断し、家を"まるごと包んだ"状態にします。
この「ダブル断熱」によって、夏は外部から熱が進入するのを抑え、冬は室内の熱を逃がしません。これにより、自然の力で「夏涼しく冬暖かい家づくり」が実現し、年間を通して光熱費も大きく節約できるうえ、調湿効果も期待できます。

家計にも地球にもやさしい、省エネルギー生活

壁体内無結露20年保証書

壁体内無結露20年保証書

デコスドライ断熱
断熱材(内断熱・外断熱)も自然素材にこだわlり、「デコスドライ断熱工法」と、合成樹脂を混ぜない自然素材の「珪藻土ぬり壁仕上げ+無垢床板貼り」という非常に相性の良い組み合せを採用しています。
この施工による"夏涼しく、冬暖かい"屋内空間は、エアコンなどの機械設備も最小限の使用で、身体にもやさしく、家計にもやさしい、そして地球にもやさしい理想的な家づくりです。
今後は省エネ家電と太陽光発電を組み合わせることで、自家発電で電力がまかなえる「ゼロエネルギー住宅」への近道となります。また、解体時に燃やしても安全なもの、土に還せるもの、再生可能なものを多く使用することによって、一歩進んだ
LCCM住宅(ライフサイクルカーボンマイナス住宅)にも近づきます。

安心して暮らしていただくための構造計算

担当者の手づくりによるドアノブです。

担当者の手づくりによるドアノブです。

耐久性の高い構造の住宅をご提供するために、木造2階建て住宅では義務付けされていない「構造計算」を行い、重心・剛心の偏心を極力少なくするとともに、壁(耐力壁)のバランスを整えて材積(材木の量)を増やしています。
私たちは、日々進化する素材・工法を実際に見て、触って、実験して、本当に良い物を見極め、お客様に安心していただける家づくりのお手伝いのために、お客様の一人ひとりのご要望にお応えし、一棟一棟丹精込めてつくり上げています。

木の家の強度と耐久性の秘密

一般に、針葉樹は伐採してから数十年から数百年にかけて強度が強くなります。ヒノキは伐採後600年くらいが強度的に最も強く、あとは徐々に弱くなっていき1200年くらいで伐採時の強度になります。
同じ重さに対する引っ張りの強さは鉄の4.4倍で、コンクリートの22倍。圧縮の強さは鉄の2.1倍で、コンクリートの9.5倍。曲げの強さは鉄の15.4倍で、コンクリートの400倍です。この強さの秘密は、木材の構造が蜂の巣ようになっている「ハニカム構造」にあります。木材は、軽くて強い自然素材なのです。
木の家の強度と耐久性

 

強くて狂いの少ない木材を決める「含水率」

真壁工法を採用

真壁工法を採用

製材された木材には、樹木として成長するときに必要な水分が多く含まれています。木材は、水分の減少にともなって収縮するために反り曲がりの「狂い」が生じます。
木材の強度は、水分の減少にともなって増大します。また、水分を多く含んでいると、カビや腐朽菌に侵されやすくなるため、木材は乾燥が必要となります。地域・季節・環境によって異なりますが、平衡含水率は屋外で15%、室内で5%と言われています。平衡含水率に近いほど強くて狂いの少ない木材となります。

快適な体感温度を実現する「呼吸する住まい」

ウォークインクローゼット

豊富な収納量の、2階のウォークインクローゼットです。

高い断熱性を保ちながら呼吸する住まいは、住む人の健康を守ると同時に建物の「健康」も守って長持ちさせます。柱・梁・床材にそれぞれ適した乾燥無垢材を使用し、呼吸する自然素材、断熱材と調湿性能の高い天然塗り壁材(珪藻土)による内装仕上げが、理想的な室内空気環境をつくります。
屋内の体感温度は、
(屋内気温+壁・床・天井の表面温度)÷2
で表され、室内の気温以上に表面温度が重要になります。
断熱性能や調湿性能が高い家は、冷暖房機器を使わずに自然のままで快適な体感温度を実現することができます。湿度が高くジメジメした夏場は湿気を吸い、湿度が低く乾燥した冬場は湿気を吐き出す自然素材の力によって、"夏涼しく、冬暖かい"屋内環境になります。また、できるだけ建物内での温度差を少なくして結露を少なくすることも重要です。湿気が溜まるとカビが生えてダニが湧き、そのダニの死骸がハウスダストの原因になります。さらに、断熱性能や調湿性能が高い家は、シックハウス防止対策にもなります。

エネルギー問題への独自の取り組み

屋根形状を太陽光発電パネル3kW以上が搭載できる形状を基本としています。さらに、後施工の際でも屋根に穴を開けないキャッチ工法に対応しています。高効率給湯機(エコキュート)+省エネ家電(LEDを含む)と太陽光発電3~4kWの組み合せで、ゼロエネルギー住宅(消費電力と発電量が同じ)が可能です。
将来、電気自動車の蓄電池が家庭用と電力交換可能になると、ますます「創エネ・蓄エネ」が大切になります。プラグインは欠かせないアイテムです。

驚異的な耐力と衝撃吸収力を持つ内装ボード

木造住宅用耐力面材

木造住宅用耐力面材

外壁の下地材には、消石灰・珪砂・バーミキュライトなどの自然素材からなる、壁倍率2.7倍の強度を持つ耐力面材を使用しています。調湿機能もあり、壁体内部の湿気を外部に出し、躯体の腐朽を防いで耐久性を高めます。防火性にも優れています。また、外装仕上げ材も、自由に選択することができます。
 

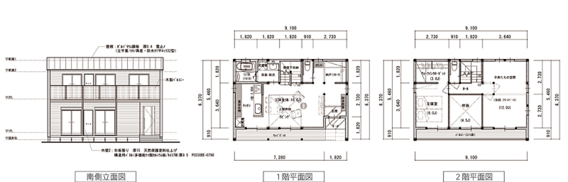
間取りプラン

東側玄関プラン

建築面積 59.62m2(18.00坪)
1階面積 51.34m2(15.50坪)
2階面積 48.02m2(14.50坪)
延床面積 99.37m2(30.00坪)

バルコニー面積 6.62m2(2.00坪)
玄関ポーチ面積 1.65m2(0.50坪)
吹抜け面積 4.96m2(1.50坪)
ウッドデッキ 6.62m2(2.00坪)

施工延面積 119.24m2(36.00坪)
施工価格 材木等の価格が変動中のため
個別見積もりとなります。
※価格には、照明器具・エアコン(1台)・造作収納・確認申請費用が含まれています。

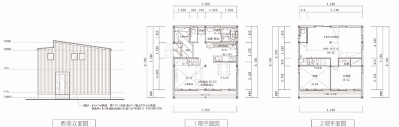
西側玄関プラン

建築面積 59.62m2(18.00坪)
1階面積 51.34m2(15.50坪)
2階面積 43.06m2(13.00坪)
延床面積 94.40m2(28.50坪)

バルコニー面積 6.62m2(2.00坪)
玄関ポーチ面積 1.65m2(0.50坪)
吹抜け面積 9.94m2(3.00坪)
ウッドデッキ 6.62m2(2.00坪)

施工延面積 119.24m2(36.00坪)
施工価格 材木等の価格が変動中のため
個別見積もりとなります。
※価格には、照明器具・エアコン(1台)・造作収納・確認申請費用が含まれています。

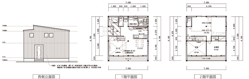
南側玄関プラン

建築面積 57.96m2(17.50坪)
1階面積 48.02m2(14.50坪)
2階面積 42.23m2(12.75坪)
延床面積 90.26m2(27.25坪)

バルコニー面積 8.28m2(2.50坪)
玄関ポーチ面積 3.31m2(1.00坪)
吹抜け面積 7.45m2(2.25坪)
ウッドデッキ 6.62m2(2.00坪)

施工延面積 115.93m2(35.00坪)
施工価格 材木等の価格が変動中のため
個別見積もりとなります。
※価格には、照明器具・エアコン(1台)・造作収納・確認申請費用が含まれています。。

北側玄関プラン

建築面積 52.99m2(16.00坪)
1階面積 44.71m2(13.50坪)
2階面積 41.40m2(12.50坪)
延床面積 86.12m2(26.00坪)

バルコニー面積 6.62m2(2.00坪)
玄関ポーチ面積 1.65m2(0.50坪)
吹抜け面積 4.96m2(1.50坪)
ウッドデッキ 6.62m2(2.00坪)

施工延面積 105.99m2(32.00坪)
施工価格 材木等の価格が変動中のため
個別見積もりとなります。
※価格には、照明器具・エアコン(1台)・造作収納・確認申請費用が含まれています。